
当今的农村自建房,最怕的等于盖成一个闷罐子——天然面积大,但采光死角多、透风差,居住体验远不如预期。
着实高品性的住宅,中枢不在于堆砌立志的石材,而在于对空间与天然筹商的调控。一个好的户型,应该让每一扇窗齐能瞄准一处甘愿,让每一个房间齐能解放呼吸。
本期共享的这套案例,是一次对于当代乡村东说念主居的深度探索。策动巧妙愚弄院落穿插的手法,冲破了室表里的畛域。岂论是南向轩敞的大主院,也曾北侧邃密的采光内庭,齐展现了极高的空间规律感。要是您正准备回乡建房,这份决策总计值得储藏鉴戒。

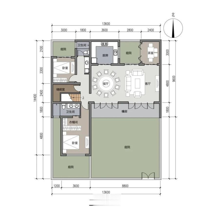
一、 庭院布局:步移景异,多重天然渗入
本决策最出彩的地点在于其表里渗入的庭院策动。不同于传统的一整块大旷地,策动通舛错位布局,酿成了三个各具功能的庭院空间:
南向大主院: 建筑南侧留出实足的轩敞空间,既是入户的礼节空间,亦然家东说念主的中枢户外举止区。大面积的留白,为后期打造水景、草坪或菜园提供了无尽可能。
巧妙小内庭: 在底层北侧和东侧巧妙穿插了两个袖珍庭院。这些“留白”不仅改善了北侧房间的采光,更酿成了一个微甘愿转化系统,杀青全屋天然透风。
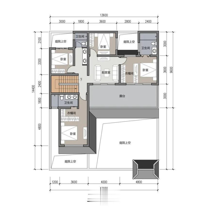
二层超大露台: 聚首一层屋顶策动的宽广露台,是不雅赏远山近景的绝佳位置。岂论是夜晚赏星也曾午后曝晒,这里齐是糊口的延长。

二、 一层功能布局:动静分区,待客有说念
一层总建筑面积洽商科学,兼顾了家庭外交与父老居住的便利性:
客餐厅一体化: 步入大门,率先映入眼帘的是宽阔的横厅空间。圆桌餐厅与大沙发客厅并行成列,搭配超大落地窗,视觉感官通透。
稳重茶肆: 在东北角庭院旁建立了稳重茶肆,这是主东说念主的静谧领地,透过窗户即可看到院中景致,待客品茗极具气派。
适老性居住: 西侧确立了一间带衣帽间和稳重卫浴的南向老东说念主房,幸免了父老爬楼的不毛,真钱三公且采光透风均为上乘。
多功能扶直空间: 厨房阁下餐厅,北侧设有后院出口,便捷处理厨余食材。同期设有稳重的储藏间(或备用卧室),得志多种收纳需求。

三、 二层功能布局:巧妙起居,尊享糊口
二层行动家庭成员的私东说念主休憩区,强调居住的舒心感与品性感:
星级主卧套房: 西南侧的主卧空间极其轩敞,自带步入式衣帽间与稳重主卫,南向纵贯户外,巧妙性与庆典感拉满。
温馨副卧组团: 另有两间卧室散播在北侧与东侧。其中东侧卧室领有优胜的采光面,且紧邻二层露台,糊口动线极为舒心。
二层起居室: 楼梯上来后,策动了一个温馨的起居厅(小客厅)。这里是家东说念主睡前的换取空间,比拟一层的浩瀚,这里更显温馨。

这套自建房的布局它告捷惩处了巧妙性与怒放性的矛盾。通过多重庭院的穿插,它冲破了传统农村房高墙深院、灰暗欠亨风的缺欠,让光、影、风成为了室内装修的一部分。
这种内敛而丰盈的策动逻辑,既适宜当代东说念主的审好意思,又保留了传统登第的邻里温度。要是您也领有相同的屋基地尺寸,不妨参考这种退避空间换取景不雅的作念法,因为比起多出的几个普通,采光、透风和那份开门见绿的心情,才是着实追随您几十年的居住价值。
在快节拍的时期,咱们比任何时辰齐渴慕一方能让精神着陆的港湾。这套屋子策动的初志,毫不单是是简便的砖瓦堆砌,它是对家这一意见的深入交融:父老在南向暖阳里安享晚年,孩子在庭院中追赶清风,三五好友在茶肆里共话桑麻。
从晨光微露到暮色四合,建筑的每一处细节齐藏着对糊口的敬意。它让咱们发现,最佳的糊口毋庸远寻,就在这方寸庭院之间。若能回乡建这么一座宅邸,装下的不仅是四季轮转的甘愿真钱三公棋牌官网,更是三代同堂的存眷与底气。
亚搏体育官方网站 - YABO
备案号: